清洁生产是将污染预防战略持续地应用生产和消费的全过程。通过不断地改善管理和技术进步,提高资源、能源利用效率和原材料转化率,减少对资源的消耗和浪费,把污染消除在生产过程,降低对人类和环境的危害,保障资源的永续利用,提高经济效益和社会效益,是实现节能减排的主要手段和措施。低压蒸粮生产工艺,是劲牌有限公司消化引进内外先进技术,成功研发的一套包含蒸粮、糖化、培菌、发酵、蒸馏等主要工序为一体的机械化、信息化操作系统,实现酿造全过程机械化、信息化,达到降低耗能、耗水、耗粮的目的。低压蒸粮就是一个应用较为成功的清洁生产项目,其项目应用情况如下:
1.项目背景
目前,国内白酒原酒酿造工艺大多采用传统作坊式生产,各工序之间缺乏连续性与紧凑性。此外,工艺设备简陋,也导致了行业整体生产效率低下,粮食原料、水电汽等能源消耗量大,污染物排放严重。传统作坊式的生产方式已经严重制约行业的工业化和信息化发展。
劲牌公司在消化引进国内外先进技术的基础上,与北京大学,华中科技大学,江南大学等科研院所开展产学研合作,项目组历时3年,成功研发出小曲原酒低压蒸粮技术,实现酿造全过程机械化、信息化,达到降低耗能、耗水、耗粮的目的。
2.低压蒸粮清洁生产技术创新点
低压蒸粮清洁生产工艺,在于建立起一套包含蒸粮、糖化培菌、发酵、蒸馏等主要工序为一体的机械化、信息化操作系统,使得工艺过程耗粮、耗水、耗煤均显著降低,且减少废水废气排放量。
2.1 低压蒸粮技术工艺中蒸粮工段采用压力旋转灭菌锅通过0.1MPa低压初蒸, 0.05MPa二次复蒸使原材料高粱快速糊化,同时减少一次闷水工序,从而大幅降低蒸汽和水等能源消耗,其中降低煤耗39%以上,降低水耗41%。
2.2 从蒸煮,到糖化,发酵全工序采用自动控制技术,提高生产过程的稳定性和可控性,大幅提高生产效率,降低生产成本,可以节约人力成本50%以上。
2.3 采用纯种取代原有传统绿衣观音土曲作文章来源华夏酒报为糖化发酵剂,可以提高原粮出酒率5%,每年降低粮耗10%。
2.4 酒质提升
一般来说,酒行业进行机械化和自动化改造,可能会对酒质产生影响,这也是整个行业机械化发展的一个瓶颈。公司经过一年的生产试验,对照应用新工艺前后酒质情况:
由于新工艺采用低温长时间发酵技术,酒质有非常明显的提升,经通过国家实验室认可的权威实验室检测,新工艺重要香味成分乙酸乙酯能够由现有的0.60g/L—0.70g/L提高到1.0g/L—1.2g/L,而有害成分高级醇类物质由目前的1.2g/L降低到0.80g/L左右,降低33%,所产小曲原酒质量有显著提升。
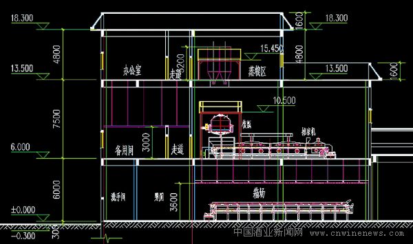
3.新旧工艺流程对比
3.1传统小曲原酒酿造工艺流程(图一)

4.新工艺节能降耗点
4.1蒸粮工序:
有由原来的一次泡粮(洗粮),两次闷水改为一次泡粮(洗粮),一次闷水,节约一次闷水,另外由于蒸粮甑的改进,可以减少单次闷水耗水量,总计可以节水41%以上。低压蒸粮取代原来的常压蒸粮,蒸汽耗用时间由原来的3个小时变为现在的35分钟,总计蒸汽耗用节约39%以上。
4.2糖化发酵工序
采用多菌种纯种培养,取代传统观音土曲,可提高原粮出酒率5个百分点,每年降低粮耗10%
4.3自控技术
从蒸煮,到糖化,发酵全工序采用自动控制技术,提高生产过程的稳定性和可控性,大幅提高生产效率,降低生产成本,可以节约人力成本50%以上。
5.低压蒸粮清洁生产技术与传统技术参数比较(表一)

6.行业影响及推广前景
低压蒸粮清洁生产应用示范项目成功实施后,可实现酿造过程机械化、自动化控制,有效节能降耗,为酿酒行业树立起清洁生产标杆,社会经济效益显著。
本技术实施后,产品吨酒耗水由原33.67吨/吨降低至20吨/吨,降幅为41%;产品吨酒原煤(5000kcal/kg)耗由原0.85吨/吨降低至0.52吨/吨,降幅为39%;废水排放量由原年排70万吨降至56万吨,降幅为20%。
以年产3万吨小曲原酒示范企业为例,每年可节约用水41万吨;节约原煤(5000kcal/kg)9900吨;节约粮食6000吨;减少废水排放14万吨。
本技术在全行业推广后(以年产100万吨保健原酒计算),可实现每年节约用水1400万吨;节约原煤33万吨;节约粮食20万吨;每年可减少废水排放460万吨。